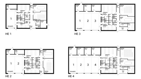
Zeitgemäße Feuerwehrhäuser sind neben modernen Einsatzfahrzeugen eine wesentliche Grundlage für einen leistungsfähigen Brandschutz. Seit Jahren unterstützt das Land die hessischen Kommunen deshalb finanziell tatkräftig und gezielt. Um die Kommunen bei Feuerwehrhausneubauten weiter zu unterstützen und entlasten, hat das Innenministerium in einer Arbeitsgruppe mit Vertretern aus dem kommunalen Bereich, dem Gebäudemanagement und der Liegenschaftsverwaltung, von einem Planungsbüro, der Unfallkasse Hessen sowie des Landesfeuerwehrverbandes Hessen einen Leitfaden entwickelt. Dieser fasst die grundlegenden Rahmenbedingungen zusammen, die bei der Planung und Projektierung von Feuerwehrhausneubauten zu beachten sind (z. B. Standortauswahl, Mindestanforderungen, optimaler Projektablaufplan, etc.). Des Weiteren werden mit dem Leitfaden Musterraumprogramme und Mustergrundrisse zur Verfügung gestellt, durch die personal- und kostenintensive Grundlagenermittlungen entfallen können. Damit kann der Leitfaden insbesondere für kleinere bis mittlere Kommunen, die zwei bis vier Stellplätze für Einsatzfahrzeuge benötigen, eine besonders praxisnahe und wirtschaftliche Orientierung sein, um Neubauvorhaben effizient zu planen und umzusetzen.

Leitfaden „Musterhaus"
Land unterstützt Kommunen beim Bau von standardisierten Feuerwehrhäusern

Heimatschutzminister Roman Poseck fasst den Mehrwert der Unterstützung des Landes für die Kommunen wie folgt zusammen: „Die Kommunen sollen sich im Brandschutz auf das Wesentliche konzentrieren können. Das bedeutet, dass sie ihre Ressourcen möglichst effektiv einsetzen sollen, damit die ehrenamtlichen Feuerwehrfrauen und Feuerwehrmänner bestmögliche Rahmenbedingungen zum Löschen, Bergen, Retten und Schützen haben. Fortan müssen die hessischen Kommunen nicht von der grünen Wiese starten, sondern erhalten eine belastbare Grundlage für eine optimale Planung. So können sie ihre Ressourcen effektiver nutzen und kommen schneller und auch kostengünstiger zu einem neuen Feuerwehrhaus.“
